The 2024 Mechanical toolset is included with AutoCAD

Increase productivity by up to 55%* with industry-specific tools for mechanical engineering, including 700,000+ intelligent parts and features. With the Mechanical toolset, you can:

  • Access our library of standards-based parts, tools, and custom content

  • Customize properties of object types and create them on custom layers

  • Automate tasks such as creating bills of materials (BOMs)


Mechanical toolset features

Discover industry tools for mechanical engineering

700,000+ standard parts and features

Produce accurate drawings with standard components to support ISO, ANSI, DIN, JIS, BSI, CSN, and GB standards. Create and save custom content through the Content Manager, which enables you to add a part or feature to a content library.


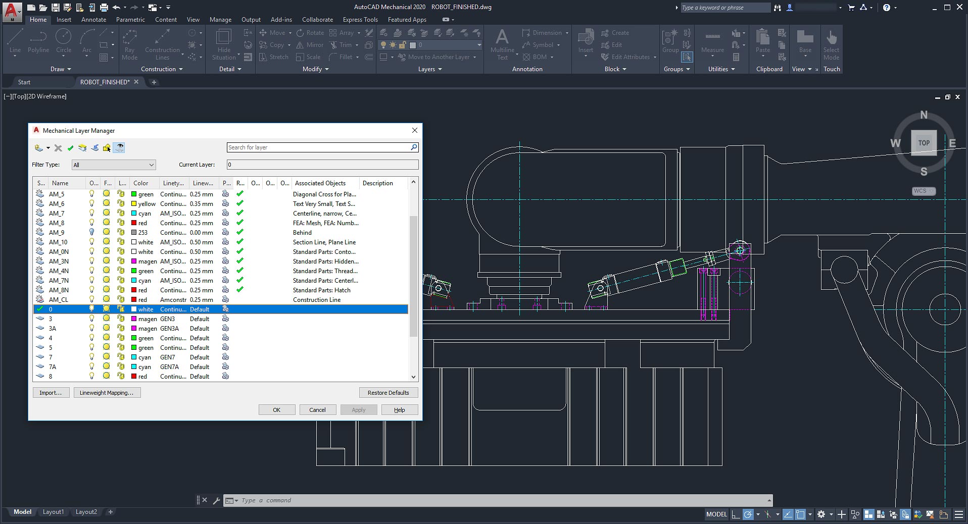
Customized layer management

Save time with commands that create mechanical layers—so you don’t have to do it manually.


Bill of Materials

Use commands to automate mechanical engineering tasks and simplify your work. Gain more control over BOMs, part lists, associative balloons, and part reference.


Power and automatic dimensioning

Get more work done in less time. Use abbreviated dialog boxes to set preferences for power dimension commands for the current standard.


GD&T symbols/annotations

Pre-configure symbols and save them to the symbol library for reuse. You can also access symbol libraries for welding, surface texture, and more.


Leader notes (AMNOTE)

Get the most out of your notes with formulas that automatically apply to an object. Use a template from a predefined set to display meaningful context-sensitive information immediately, instead of having to do it yourself.


Drawing border and title blocks

Customize drawing borders and title blocks to work with your system. Each of these items exists as separate .dwg files, which you can copy and modify to optimize your configuration.


Drawing detailing

Use intelligent drafting tools made specifically for mechanical design. Boost drawing productivity and efficiency with reusable detailing tools such as Centerline, AMSHIDE, Hole Charts, and Scale Area for Viewports.


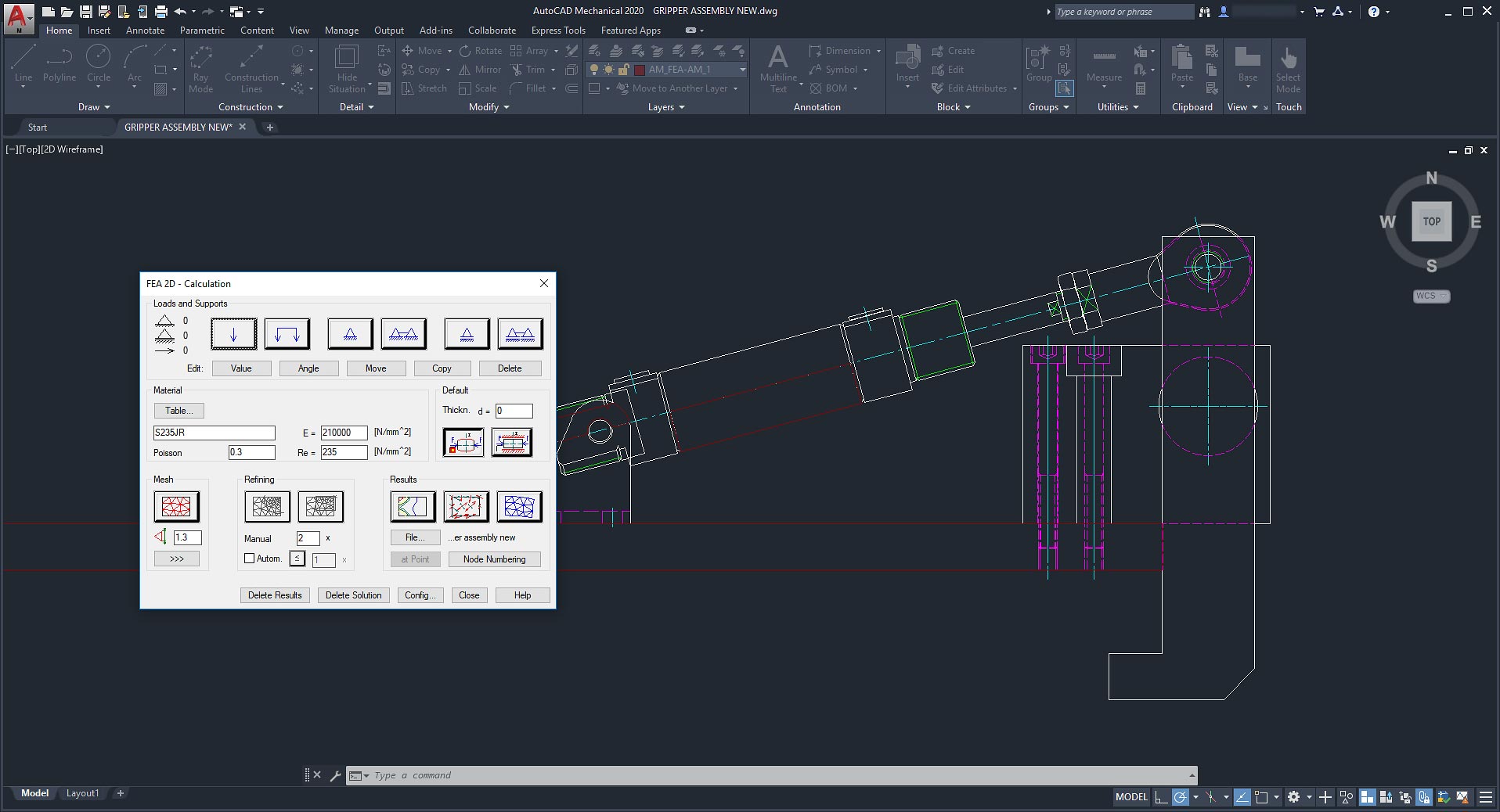
2D calculations

Combine automatic part creation with drawing automation to get the best value. Efficiently analyze designs and perform 2D calculations such as FEA, Shaft Calc, and Moment of Inertia.


Woman working with AutoCAD and robotics

Benefits of the Mechanical toolset

In this study, the Mechanical toolset boosted productivity by up to 55%,* bringing dramatic time savings to common AutoCAD mechanical design tasks.

*Disclaimer

Productivity data based on a series of studies commissioned by Autodesk to an outside consultant. The seven toolset studies compared basic AutoCAD to the specialized toolsets within AutoCAD when performing tasks commonly done by experienced AutoCAD users. As with all performance tests, results may vary based on machine, operating system, filters, and even source material. While every effort has been made to make the tests as fair and objective as possible, your results may differ. Product information and specifications are subject to change without notice. Autodesk provides this information “as is,” without warranty of any kind, either express or implied.