The 2024 Plant 3D toolset is included with AutoCAD

Create and edit P&IDs and 3D models, and extract piping orthographics and isometrics with an industry-specific toolset for plant design. With the Plant 3D toolset, you can:

  • Collaborate securely in a cloud-based common data environment  

  • Speed up and automate P&ID drafting and 3D modeling with in-context commands  

  • Automatically create piping isometric drawings directly from the 3D model  


Plant designed with the Plant 3D toolset

Plant 3D toolset features

Speed up your work with the AutoCAD Plant 3D toolset

Collaboration & P&IDs

Collaboration for Plant 3D

Collaborate on plant design models across project teams and maintain compliance requirements—all in a cloud-based common data environment.


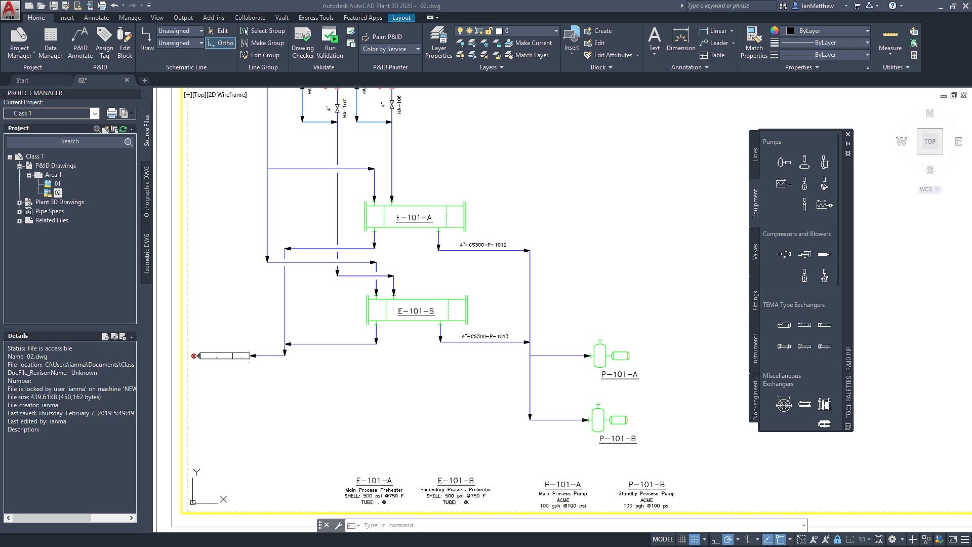
Quick P&ID drafting

Use in-context AutoCAD commands to make P&ID drafting easier. (video: 58 sec.)


Industry-standard symbol libraries

The Plant 3D toolset is delivered with standard symbol libraries in the tool palettes. These include PIP, ISA, ISO/DIN, and JIS.


Data validation

Quickly identify possible errors by scanning P&IDs for data consistency according to user-definable rules.


3D modeling

Rapid plant modeling in 3D

Quickly create 3D plant models using parametric equipment modeling, structural steel libraries, and project-specific piping specifications using industry standard piping catalogs. (video: 1:26 min.)


Parametric equipment templates

Create and edit equipment using parametric templates to help you build plant layouts faster.


Structural modeling

Lay out structures, stairs, ladders, and railings using industry-standard steel sections including AISC, CISC, and DIN.


Create project-specific piping specs

Customize piping specifications to meet project-specific requirements. Include industry-standard components as well as customized components.


Piping documentation

Create and edit piping orthographic drawings

Extract piping orthographic drawings directly from the 3D model and update them as the 3D model is being updated.


Automated production of piping isometrics

Create industry standard/project-standard piping isometric drawings directly from the 3D model.


Automated project-specific reporting

Define report formats for the project and automatically populate the data directly from the 3D model.


BIM model documentation

Work with other industry disciplines to create BIM models for the plant.


Cylinder pipes in plant

Benefits of the Plant 3D toolset

In this study, the Plant 3D toolset boosted productivity by up to 74%,* bringing significant time savings to common AutoCAD process plant design tasks.

Plant 3D workflows

Plant 3D toolset + BIM 360 Design

Plant designers use BIM 360 Design to collaborate across project teams in a cloud-based common data environment. 


Plant 3D toolset + Revit + Navisworks + InfraWorks

Use Plant 3D in the AEC Collection for spec-driven design, analysis, and construction-ready isometrics.


3D graphic of cityscape in muted hues

Autodesk AEC Collection

Streamline your workflows with Plant 3D, Civil 3D, InfraWorks, Revit, and other BIM software and tools.


*Disclaimer

Productivity data based on a series of studies commissioned by Autodesk to an outside consultant. The seven toolset studies compared basic AutoCAD to the specialized toolsets within AutoCAD when performing tasks commonly done by experienced AutoCAD users. As with all performance tests, results may vary based on machine, operating system, filters, and even source material. While every effort has been made to make the tests as fair and objective as possible, your results may differ. Product information and specifications are subject to change without notice. Autodesk provides this information “as is,” without warranty of any kind, either express or implied.